Nuova casa indipendente con giardino e garage per i residenti
126 mq
7
3
3
2.500 €
San Genesio Atesino - Avigna
4791
Dati chiave
Informazioni generali:
Tipologia di immobile:
Villa / Casa / Maso
Contratto:
Locazione
Canone d’affitto (utenze escluse):
2.500 €
Abitazione riservata ai residenti:
sì
Piano:
0-1
Ascensore:
no
Arredamento:
arredato
Area & Servizi:
Sup. abitabile:
126 mq
Sup. commerciale:
ca. 237 mq
Sup. balcone / terrazzo:
18 mq
Sup. giardino:
183 mq
Sup. cantina:
88 mq
Vani:
7
Camere da letto:
3
Bagni:
3
Condizione ed efficienza energetica:
Costruito nel:
2025
Stato immobile:
Nuovo / In costruzione
Fonte riscaldamento:
pellet, solare
Impianto riscaldamento:
Descrizione
L’immobile è convenzionato e può essere abitato esclusivamente da persone in possesso dei requisiti previsti.
Al piano terra si trovano un accogliente ingresso e un’ampia zona giorno open space composta da soggiorno, cucina separata con accesso diretto alla terrazza, uno studio e un bagno. La terrazza accogliente e il giardino adiacente offrono spazio sufficiente per un tavolo da pranzo all’aperto e invitano a piacevoli momenti di relax.
Al primo piano si sviluppa la zona notte, composta da tre camere da letto e due bagni.
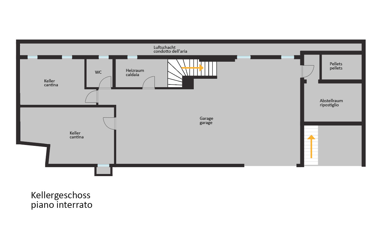
Un ampio seminterrato e un grande garage sono inclusi nel canone di locazione.
Disponibile dal 01/08/2026.
Questa nuova casa unifamiliare si trova nel centro del paese di Avigna.
Nelle immediate vicinanze si trova praticamente tutto il necessario: una scuola elementare, una farmacia, una banca, diversi supermercati, un caffè e molto altro ancora.
Informazione
Imposte
Le imposte per l’acquisto di un immobile sono a carico dell’acquirente. Si distingue come segue:
Acquisto da una persona privata:
In caso di acquisto da una persona privata o se la vendita non è soggetta ad IVA si applica l’imposta di registro sul valore catastale.
- Prima casa: 2% imposta di registro, più imposta ipotecaria fissa (€ 200,00) e imposta catastale fissa (€ 200,00).
- Seconda casa: 9% imposta di registro, più imposta ipotecaria fissa (€ 200,00) e imposta catastale fissa (€ 200,00).
Acquisto da imprese:
In caso di vendita di immobili residenziali da parte di un impresa si applica la imposta sul valore aggiunto (IVA).
- Prima casa: 4% IVA più imposta di registro fissa (€ 200,00), imposta ipotecaria fissa (€ 200,00) e imposta catastale fissa (€ 200,00).
- Seconda casa: 10% IVA più imposta di registro fissa (€ 200,00), imposta ipotecaria fissa (€ 200,00) e imposta catastale fissa (€ 200,00).
- Immobile di lusso: 22% IVA più imposta di registro fissa (€ 200,00), imposta ipotecaria fissa (€ 200,00) e imposta catastale fissa (€ 200,00).
Oltre alle tasse, ci sono le spese notarili per l'autenticazione del contratto preliminare d'acquisto o del contratto d'acquisto. Questi variano a seconda del prezzo della proprietà da trasferire e dipendono dal fatto che il contratto sia redatto in una o due lingue.
Contattateci
La tua richiesta sull'immobile “Nuova casa indipendente con giardino e garage per i residenti” (4791)
Oggetti simili
Nessun oggetto simile alla tua ricerca è stato trovato.























