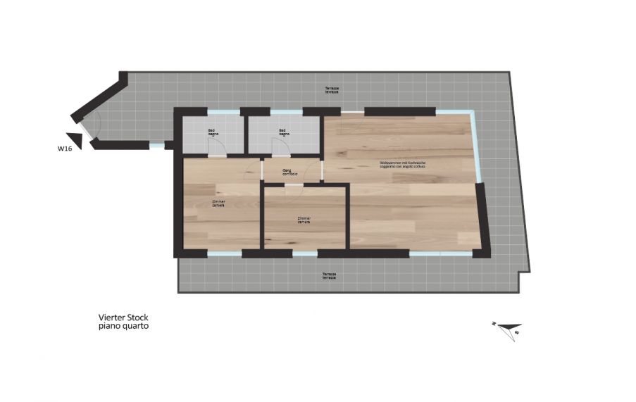
New 3-room-apartment with balconies- 16
68 sqm
3
2
2
780.000 €
Bolzano - City Center
5145
Key data
General information:
Category:
apartments
Kind of property:
apartment
Contract:
purchase
Purchase price:
780.000 €
Apartment for residents:
no
Floor:
4
Lift:
yes
Furniture:
unfurnished
Area & Facilities:
Net living area:
68 sqm
Sales area:
approx. 118 sqm
Terrace/ Balcony area:
55 sqm
Area cellar:
5 sqm
Rooms:
3
Bedroom:
2
Bathroom:
2
Condition & energy efficiency:
Year of construction:
2025
Object state:
first time use
Energie source:
gas, heat pump, Photovoltaikanlage
Type of heating:
floor heating
Energy class:
A+
Energy consumption:
30 kWh/(m²a)
Description
The new building focuses on sustainability and impresses with its unique architectural design.
High-quality materials guarantee a high level of living comfort. The residential units are equipped with underfloor heating, which is provided by a hybrid system consisting of a heat pump and a small methane boiler with individual room temperature control. Additionally, a ventilation system will be installed and the infrastructure for air conditioning will be prepared.
The photovoltaic system ensures the operation of the heat pump, and any surplus is used for the operation of the residential complex (elevator, lighting, etc.).
The residential complex will be built to climate-house standard A-Nature.
A basement is included in the price. A garage box can be purchased additionally.
Handover of the apartments: End 2025.
In the heart of Bolzano, just a stone's throw from the theater and close to Waltherplatz, the cathedral and the train station, a new residential building with only 17 apartments, cellars and garages is being built.
Both family-friendly 3- and 4-room apartments as well as small 1-room investment apartments are available. The new construction consists of light-filled living spaces with spacious terraces or balconies.
Information
Taxes
The buyer always pays the taxes for the real estate assignment. It is distinguished as follows:
Purchasing from a private person:
If the property is purchased from a private person or an entity not subject to VAT, the registration tax must be calculated based on the cadastral value:
- First/primary home: 2% registration tax, fixed mortgage tax (€ 50.00) and fixed land registry tax (€ 50.00).
- Secondary/holiday home: 9% registration tax, fixed mortgage tax (€ 50.00) and fixed land registry tax (€ 50.00).
Purchasing from companies:
If the property is purchased from a company, which is subject to VAT, the general Value added Tax (VAT) applies:
- First/primary home: 4% VAT, fixed registration tax (€ 200,00), fixed mortgage tax (€ 200.00) and fixed land registry tax (€ 200.00).
- Secondary/holiday home: 10% VAT, fixed registration tax (€ 200,00), fixed mortgage tax (€ 200.00) and fixed land registry tax (€ 200.00).
- Luxury property: 22% VAT, fixed registration tax (€ 200,00), fixed mortgage tax (€ 200.00) and fixed land registry tax (€ 200.00).
In addition to the taxes, there are notary fees for the notarisation of the preliminary purchase agreement or purchase contract. These vary according to the price of the property to be transferred and depend on whether the contract is drawn up in one or two languages.









