Bürolokal in der Pfarrhofstraße zu verkaufen
53 m²
2
1
125.000 €
Bozen - Oberau-Haslach
5397
Eckdaten
Allgemeine Informationen:
Objektart:
Büro / Praxis
Überlassung:
Kauf
Kaufpreis:
125.000 €
Etage:
1
Aufzug:
Ja
Möblierung:
unmöbliert
Fläche & Ausstattung:
Nettofläche:
53 m²
Verkaufsfläche:
59 m²
Zimmer:
1
Seperate WC:
2
Zustand & Energieeffizienz:
Baujahr:
1992
Objektzustand:
gebraucht
Energiequelle:
Gas
Heizungsart:
Beschreibung
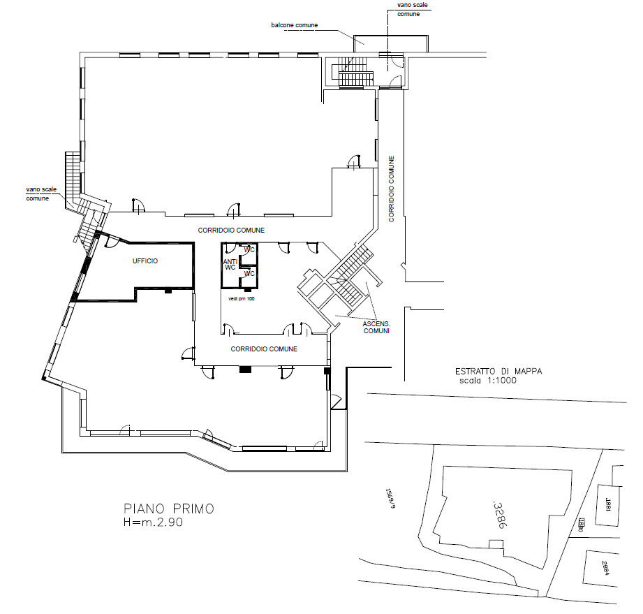
Die zwei Toiletten sind privat und befinden sich außerhalb des Büros.
Der erste Stock ist auch mit dem Aufzug erreichbar.
Katasterkategorie: A/10.
Die Nettofläche beträgt etwa 52,5 Quadratmeter.
Im Untergeschoss können Sie eventuell auch einen Stellplatz kaufen oder einen Stellplatz in unmittelbarer Nähe.
Die Lage des Gebäudes, in welchem sich das Büro befindet, kann als sehr gut betrachtet werden.
Der multifunktionale Komplex Trading Center liegt strategisch günstig in unmittelbarer Nähe der Industriezone und der Autobahn.
Es gibt eine Bushaltestelle in unmittelbarer Nähe und einen Fahrradweg.
Im Erdgeschoss befinden sich zudem eine Bar und eine Apotheke.
Vor dem Gebäude befindet sich ein großzügiger öffentlicher Parkplatz.
Information
Steuern
Die anfallenden Steuern beim Kauf einer Immobilie trägt immer der Käufer. Es wird unterschieden:
Kauf von Privatperson:
Wird die Immobilie von einer Privatperson verkauft oder unterliegt der Verkauf nicht der MwSt., fällt eine Registersteuer an, welche auf den Katasterertrag zu berechnen ist.
- Erstwohnung: 2% Registersteuer zzgl. fixe Hypothekargebühr (€ 50,00) und fixe Katastergebühr (€ 50,00).
- Nicht-Erstwohnung: 9% Registersteuer zzgl. fixe Hypothekargebühr (€ 50,00) und fixe Katastergebühr (€ 50,00).
Kauf von Unternehmen:
Wird die Immobilie von einem Bau- oder Handelsunternehmen verkauft welches die Liegenschaft gebaut oder saniert hat, fällt eine MwSt. an welche auf den Kaufpreis zu berechnen ist:
- Erstwohnung: 4% MwSt. zzgl. fixe Registersteuer (€200,00), fixe Hypothekargebühr (€ 200,00) und fixe Katastergebühr (€ 200,00).
- Nicht-Erstwohnung: 10% MwSt. zzgl. fixe Registersteuer (€200,00), fixe Hypothekargebühr (€ 200,00) und fixe Katastergebühr (€ 200,00).
- Luxuswohnung: 22% MwSt. zzgl. fixe Registersteuer (€200,00), fixe Hypothekargebühr (€ 200,00) und fixe Katastergebühr (€ 200,00).
Zusätzlich zu den Steuern fallen Notarspesen für die Beurkundung des notariellen Kaufvorvertrages oder Kaufvertrages an. Diese variieren ja nach Preis der zu übertragenden Liegenschaft und hängen davon ab, ob der Vertrag ein- oder zweisprachig abgefasst wird.








