Neuwertige, teilmöblierte Erdgeschosswohnung in Steinhaus
159 m²
5
4
2
720.000 €
Ahrntal - Steinhaus
5346
Eckdaten
Allgemeine Informationen:
Objektart:
Wohnung
Objekttyp:
Erdgeschosswohnung
Überlassung:
Kauf
Kaufpreis:
720.000 €
Wohnung für Ansässige:
Nein
Etage:
0
Ausrichtung:
SO
Aufzug:
Möblierung:
teilmöbliert
Fläche & Ausstattung:
Nettowohnfläche:
159 m²
Verkaufsfläche:
ca. 226 m²
Balkon-/ Terrassenfläche:
6 m²
Gartenfläche:
170 m²
Zimmer:
5
Schlafzimmer:
4
Badezimmer:
2
Zustand & Energieeffizienz:
Objekt saniert:
2022
Objektzustand:
neuwertig
Energiequelle:
Fernwärme
Heizungsart:
Bodenheizung
Energieklasse:
D
Energieverbrauch:
100 kWh/(m²a)
Beschreibung
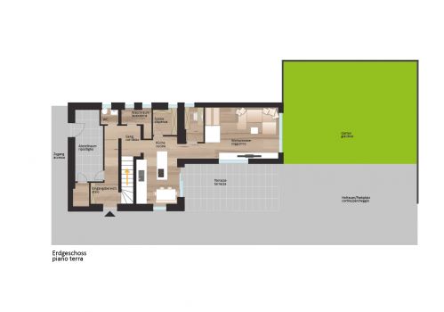
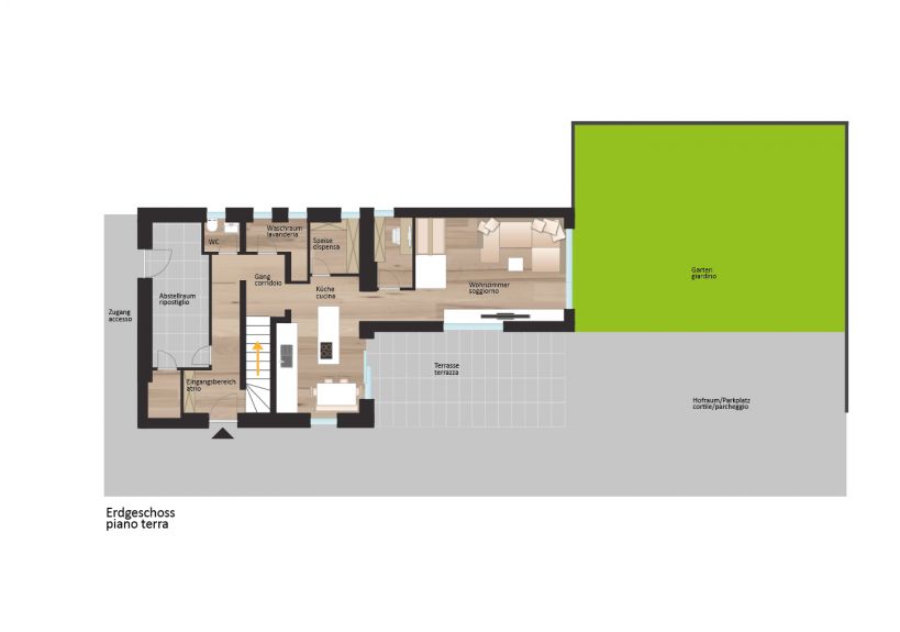
Das Erdgeschoss empfängt Sie mit einem einladenden Eingangsbereich und führt weiter in die moderne, voll ausgestattete Küche mit Speise. Das großzügige Wohnzimmer mit Holzofen und gemütlicher Ofenbank bildet das Herzstück der Wohnung – ein Ort zum Entspannen und Wohlfühlen. Ebenfalls im Erdgeschoss befinden sich ein Büro, ein Tages-WC sowie ein Waschraum. Ein großer Abstellraum, der als Kellerraum dient, bietet zusätzlichen Stauraum.
Im Obergeschoss erwarten Sie drei helle Schlafzimmer, ein weiteres Zimmer sowie ein stilvolles Badezimmer mit hochwertiger Ausstattung.
Ein echtes Highlight ist der wunderschöne Garten mit Blick auf den Fluss – perfekt für entspannte Stunden im Grünen. Zudem verfügt die Wohnung über eine Terrasse sowie einen Hofraum mit Parkmöglichkeiten.
Die Ausstattung ist hochwertig und teilweise möbliert, mit einem schönen Holzofen und Ofenbank, eigenem Außenzugang, großzügiger Raumaufteilung sowie Garten, Terrasse und Parkmöglichkeiten im Hof.
Die Wohnung ist frei von Bindungen und kann somit als Zweitwohnung genutzt werden..
Die Wohnung befindet sich in Steinhaus im Ahrntal – ruhig und naturnah gelegen, zugleich gut erreichbar. Ideal für Familien oder Paare, die Wert auf Wohnqualität, Platz und Privatsphäre legen.
Information
Steuern
Die anfallenden Steuern beim Kauf einer Immobilie trägt immer der Käufer. Es wird unterschieden:
Kauf von Privatperson:
Wird die Immobilie von einer Privatperson verkauft oder unterliegt der Verkauf nicht der MwSt., fällt eine Registersteuer an, welche auf den Katasterertrag zu berechnen ist.
- Erstwohnung: 2% Registersteuer zzgl. fixe Hypothekargebühr (€ 50,00) und fixe Katastergebühr (€ 50,00).
- Nicht-Erstwohnung: 9% Registersteuer zzgl. fixe Hypothekargebühr (€ 50,00) und fixe Katastergebühr (€ 50,00).
Kauf von Unternehmen:
Wird die Immobilie von einem Bau- oder Handelsunternehmen verkauft welches die Liegenschaft gebaut oder saniert hat, fällt eine MwSt. an welche auf den Kaufpreis zu berechnen ist:
- Erstwohnung: 4% MwSt. zzgl. fixe Registersteuer (€200,00), fixe Hypothekargebühr (€ 200,00) und fixe Katastergebühr (€ 200,00).
- Nicht-Erstwohnung: 10% MwSt. zzgl. fixe Registersteuer (€200,00), fixe Hypothekargebühr (€ 200,00) und fixe Katastergebühr (€ 200,00).
- Luxuswohnung: 22% MwSt. zzgl. fixe Registersteuer (€200,00), fixe Hypothekargebühr (€ 200,00) und fixe Katastergebühr (€ 200,00).
Zusätzlich zu den Steuern fallen Notarspesen für die Beurkundung des notariellen Kaufvorvertrages oder Kaufvertrages an. Diese variieren ja nach Preis der zu übertragenden Liegenschaft und hängen davon ab, ob der Vertrag ein- oder zweisprachig abgefasst wird.













